


- Maîtrise d’ouvrage : Particulier
- Années : 2021
- Budget : N.C.
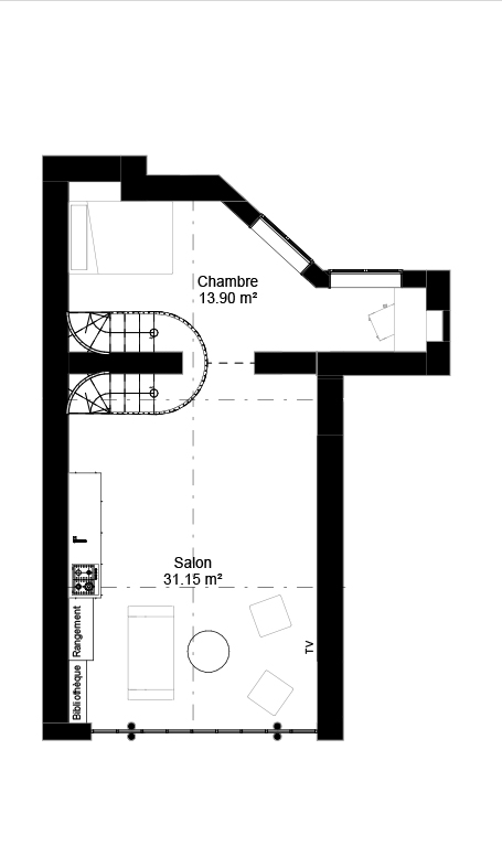
- Surface de plancher : 58 m²
Ce projet visait à transformer un garage de centre ville en logement de qualité tout en maintenant une place de parking disponible. L’espace très contraint en apport de lumière naturelle et d’accessibilité a été réconcilié par un astucieux escalier permettant de relier deux pans de batiments séparé par un mur porteur non altérable. Le choix des matériaux et l’organisation des espaces a été pensé pour libérer au maximum la circulation du regard et de la lumière.
