


- Maîtrise d’ouvrage : Particulier
- Année : 2021
- Budget : 120 000 €
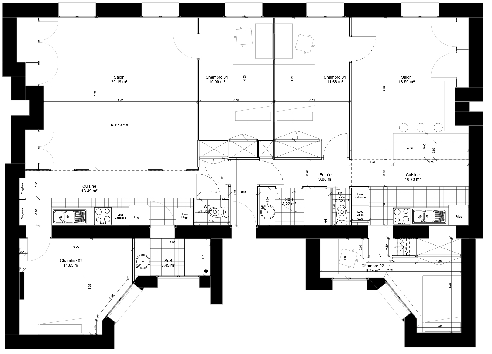
- Surface de plancher : 122 m²
Cette appartement avait besoin d’un coup de jeune et les propriétaire souhaitaient le diviser en deux tout en gardant la possibilité de le regrouper en un seul dans le futur. Cette étude a résolut le problème en créant une bande technique concentrant les pièces humides (sanitaires, salles d’eaux, cuisines) côté cours. Côté rue les espaces de vie bénéficient de plus de lumiaire naturelle et des boiseries existantes. Les cuisines s’intègrent dans les boiseries, jouant avec leur motif pour dessiner des accès et des placards et créant un fond coloré et contemporain tout en contraste.
