



- Maîtrise d’ouvrage : Particulier
- Année : 2021
- Budget : 58 200 €
- Surface de plancher : 170 m²
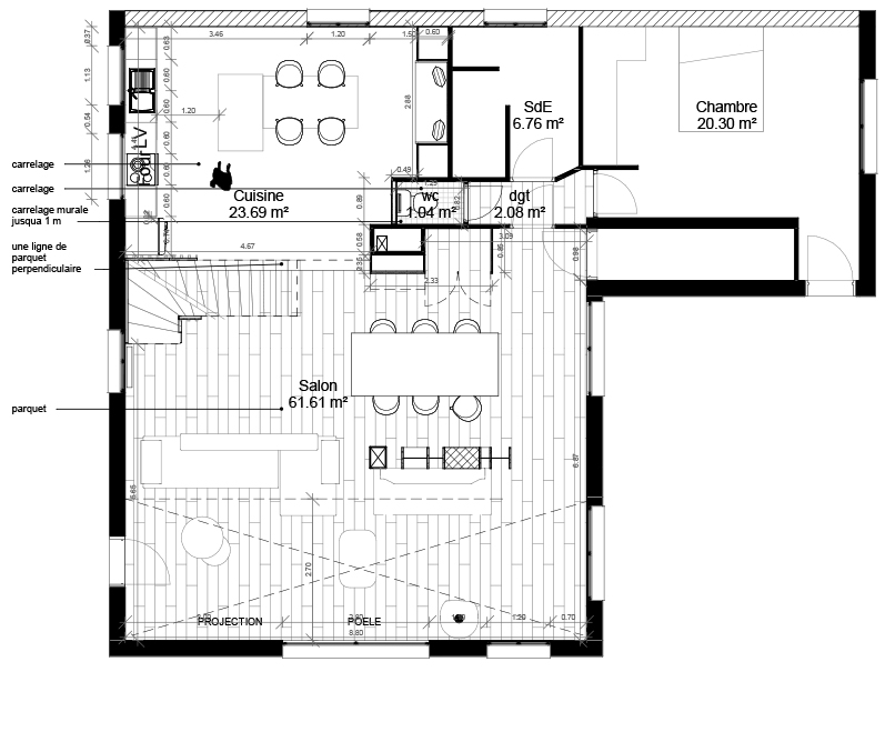
Réalisée pour des habitants fraîchement arrivées dans la région et désireux de se mettre au vert, cette rénovation a chercher à réorgansier les espaces afin de différentier les fonctions dans l’immense pièce de vie de 80m². L’utilisation de la couleur et de dispositifs achitecturaux ont permis de diviser l’espace sans le cloisonner. Une double hauteur a été percée dans le salon dont les grandes dimensions nécessitaient une certaine amplitude verticales. Ce volume ouvert, moins imposant que ludique, a permis de créer de nouveaux points de vues depuis l’étage.
