


- Maîtise d’ouvrage : Particulier
- Années : 2022
- Budget : 130 000 € HT
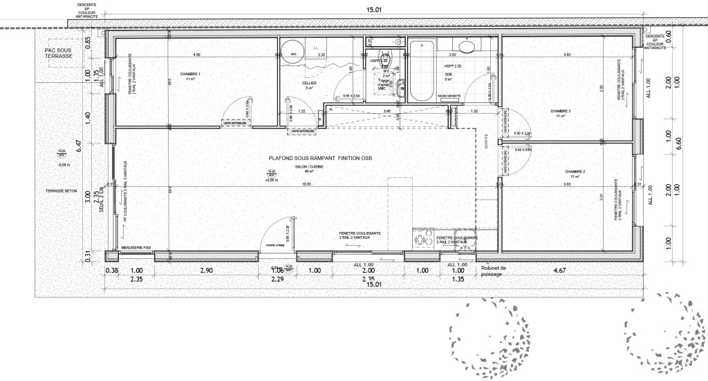
- Surface de plancher : 86 m²
Cette maison en fond de parcelle sait se faire discrète. Délicatement posé sur le terrain qui descent vers la rivière en contrebas, le volume s’adosse au mur mitoyen afin de minimiser les vis à vis. La toiture en simple pente dégage un volume généreux à l’intérieur de ce logement doté de 3 chambres. Les espaces de circulations sont réduits au minimum avec une organisation centrée autour de la pièce de vie qui bénéficie d’une double orientation. La terrasse en béton semble surgir de la pente au nord et vient graduellement créer un léger promontoir orienté vers la rivière au sud.
Modeste par ses dimensions et son prix, le projet s’affirme aussi par une empreinte carbone réduite grâce à l’usage d’un bardage bois prégrisé posés sur des murs à ossatures bois. Réalisée suivant la nouvelle réglementation énergétique RE2020, cette maison propose un confort certain.
L’intérieur, minimaliste, cherche à exprimer les matériaux bruts qui le constituent, du béton quartzé au sol, un plafond OSB et des menuiseries aluminium anthracites.
